Home   Contact
Basis boards   CS & power
Stack boards   Bouwinstructies
Prijslijst   Site in English
 
 

Rocrail & iTrain instellingen
DCC-decoder seinen

Klik op de afbeeldingen voor configuratiesettings in Rocrail en iTrain (afbeeldingen openen in een nieuw tabblad).

Let op: de adressen in de sketches en de voorbeeldschermen kunnen afwijken van de adressen op jouw modelbaan. Denk daarom eerst na over de adresindeling op jouw baan en neem niet automatisch de adressen over uit de voorbeelden (die dienen slechts ter illustratie). Zie ook de informatie bij adresplan op de hoofdpagina van de bouwinstructies.

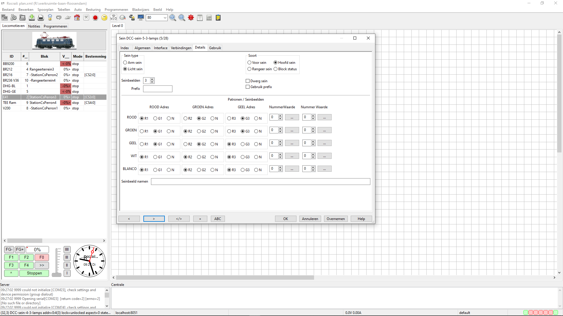
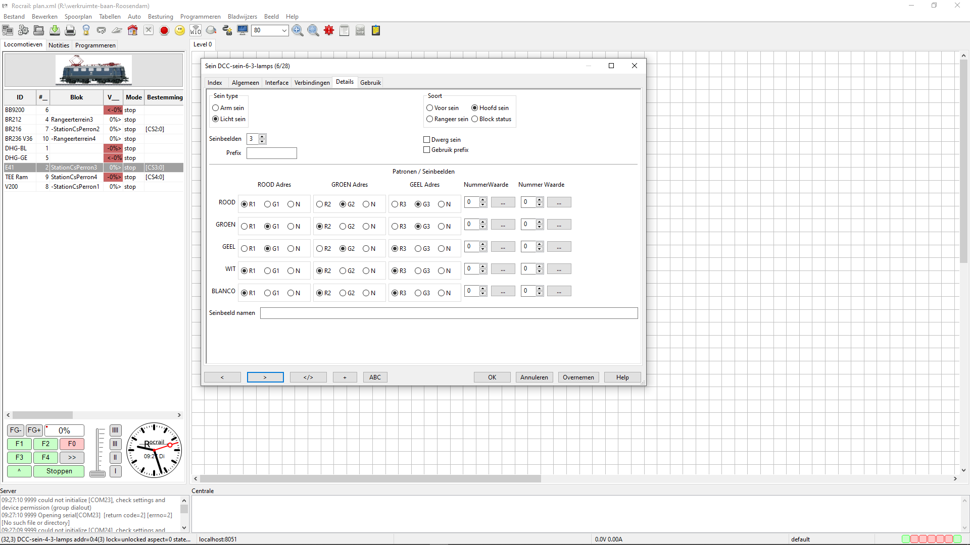
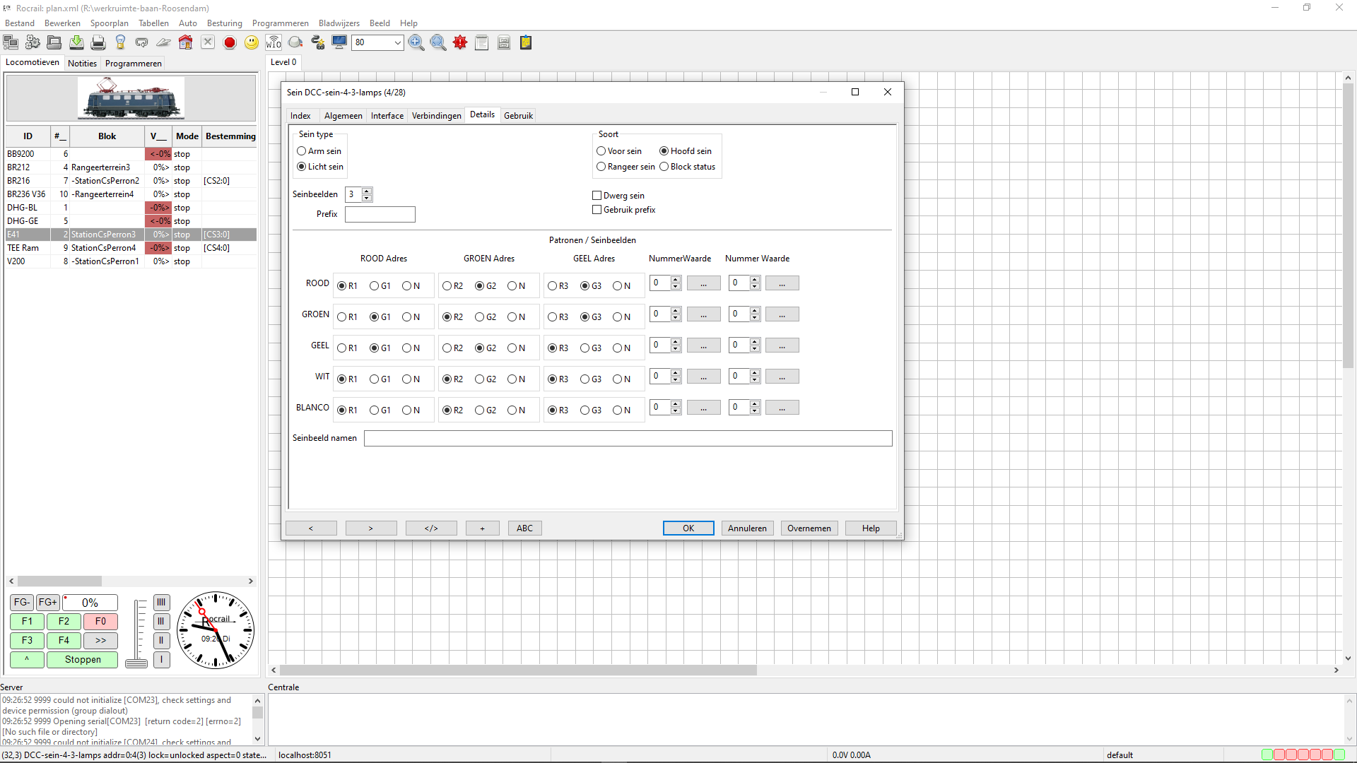
De gebruikte voorbeeldseinen hebben elk 3 lampen in de volgorde groen, oranje, rood. Indien in jouw configuratie de volgorde anders moet zijn dan kun je de settings conform jouw situatie aanpassen.

Bij het handmatig instellen van seinbeelden is het belangrijk dat je beseft dat de software niet alleen een seinlamp aan moet schakelen, maar tevens de andere lamp(en) moet uitschakelen! Rode LED aan betekent ook groene LED uit en vv. En let op: bij de configuratie van seinen worden in de modelspoorsoftware ook de kleuren rood en groen gebruikt voor de schakelstanden (denk aan zo'n ouder kastje om wissels en seinen te besturen met een groene en een rode knop), maar dat staat los van de LED-kleuren van het sein. Soms is dat verwarrend!

 

Rocrail configuratie

Adressering van wissels, seinen, ontkoppelaars en accessoires binnen Rocrail is soms wat complex omdat adressen worden omgezet naar een combinatie Adres-Poort (MADA, module adressering, blokken van 4). En terugmelders gebruiken FADA adressering (lineair). Je leest er alles over in de Wiki van Rocrail. Op de pagina bouwinstructies van deze website staat ook een korte uitleg met voorbeelden over MADA- en FADA-adressering).

Configureer in Rocrail de seinen als volgt:

 

Tab index, adressering:

 

Tab interface, 1e sein:

 

Tab details, 1e sein:

 

Tab interface, 2e sein:

 

Tab details, 2e sein:

 

Tab interface, 3e sein:

 

Tab details, 3e sein:

 

Et cetera.

 

iTrain configuratie

Configureer in iTrain de seinen als volgt:

 

1e sein:

 

2e sein:

 

Et cetera.

 

Extra test (optioneel)

Indien je een stack board test & debug hebt, test dan eerst het basis board met het test & debug stack board. Dan zie je exact aan de led's of alles goed is ingesteld en netjes werkt (en niet omgekeerd pulseert bv). Indien alles oké is dan kun je het stack board voor de wissels, ontkoppelaars, seinen, DC-outputs, servo's, relais & pins, et cetera, plaatsen en aansluiten. Sluit de onderdelen op de modelbaan (wissels, ontkoppelaars, seinen, etc) nog even niet aan op het stack board, dat komt bij bouwbeschrijving sectie 4.

Indien je niet beschikt over een stack board test & debug dan kun je outputs ook testen met losse led's met weerstanden of met een multimeter.

 

 

Ga verder naar bouwbeschrijvingen, sectie 4

 

 

 



 

(C) Ed den Ouden
Modelspoor Stack Modules (R)